
Ένα σημαντικό βήμα για την υλοποίηση της ανάπλασης του πάρκου στην Παλαιά Πυροσβεστική στο Κρανίδι έγινε πραγματικότητα, καθώς ο Δήμος Ερμιονίδας ενημέρωσε ότι εγκρίθηκε κατά τη συνεδρίαση του ΔΣ του «Πράσινου Ταμείου» του Υπουργείου Περιβάλλοντος & Ενέργειας...
Πρόκειται για έργο που θα αλλάξει όλη η συγκεκριμένη περιοχή στο Κρανίδι.
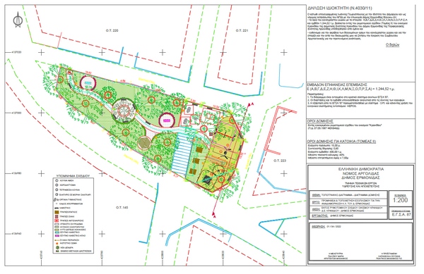
Υπενθυμίζεται ότι ο Δήμος Ερμιονίδας έκανε γνωστό στις 6 Ιουνίου ότι υπέβαλε την προαναφερόμενη πρόταση στο Χρηματοδοτικό Πρόγραμμα «ΔΡΑΣΕΙΣ ΠΕΡΙΒΑΛΛΟΝΤΙΚΟΥ ΙΣΟΖΥΓΙΟΥ» για τα έτη 2021-2022 του «Πράσινου Ταμείου». Έγινε, μάλιστα, γνωστός ο τρόπος αποπληρωμής του έργου, ενώ δόθηκαν στη δημοσιότητα και σχετικές φωτογραφίες. Έργο για το οποίο ο δήμαρχος Γιάννης Γεωργόπουλος έκανε αναφορά την Κυριακή (05/06) στο Δημοτικό Συμβούλιο, κατά τη διάρκεια του οποίου έγινε και ο απολογισμός των πεπραγμένων.
Η ανακοίνωση του Δήμου Ερμιονίδας αναφέρει:
Η Δημοτική Αρχή διεκδικεί κάθε διαθέσιμη πηγή πόρων για έργα και υποδομές, που βελτιώνουν την καθημερινότητα των πολιτών.
Στην χθεσινή συνεδρίαση του ΔΣ του «Πράσινου Ταμείου» του Υπουργείου Περιβάλλοντος & Ενέργειας, με θέμα την ένταξη έργων στο χρηματοδοτικό πρόγραμμα «Δράσεις Περιβαλλοντικού Ισοζυγίου», αποφασίστηκε μία ακόμη ένταξη έργου του Δήμου Ερμιονίδας.
Με την υπ’ αριθ. 244.3.2/27.07.2022 Απόφαση Δ.Σ. του Πράσινου Ταμείου (ΑΔΑ : ΨΘΧΜ46Ψ844-ΖΧ1) εντάχθηκε η υπ’ αριθ. πρωτ. 3864/2022 πρόταση του Δήμου Ερμιονίδας με τίτλο : «Προμήθεια και τοποθέτηση εξοπλισμού για την αναδιαμόρφωση κοινόχρηστου χώρου του Δήμου Ερμιονίδας», προϋπολογισμού 214.263,00 ευρώ.
Η ανάπλαση του πάρκου που βρίσκεται στην περιοχή της παλαιάς πυροσβεστικής στο Κρανίδι, με την δημιουργία ενός πολυθεματικού και πολυχρηστικού χώρου μέσα στο Κρανίδι, είναι μια σημαντική πρόταση την οποία κατέθεσε ο Δήμος μας, και σύντομα θα γίνει πραγματικότητα.
Συνεχίζουμε την προσπάθεια εξασφάλισης χρηματοδοτήσεων για υλοποίηση έργων με σκοπό την ανάπτυξη του τόπου μας, αναμένουμε νέες εγκρίσεις έργων, προετοιμάζουμε προς κατάθεση και έγκριση νέες προτάσεις έργων.
Η Δημοτική Αρχή, αξιοποιώντας όλα τα διαθέσιμα χρηματοδοτικά προγράμματα (Πράσινο Ταμείο, Φιλόδημος, κ.λπ.), υλοποιεί τις δεσμεύσεις της, καταθέτει προτάσεις οι οποίες εγκρίνονται, βελτιώνει και δημιουργεί έργα, με σκοπό και στόχο την αστική αναζωογόνηση, την αναβάθμιση της ποιότητας ζωής, με μοναδικό γνώμονα την ανάπτυξη της Ερμιονίδας μας.
Γραφείο Δημάρχου
Οι Πυροσβεστικές Δυνάμεις συνεχίζουν να δίνουν για ακόμα μία ημέρα μάχη με μέτωπα φωτιών σε πολλές περιοχές της χώρας, ανάμεσα στις οποίες είναι και στην Πελοπόννησο, όπως στη Μεσσηνία, στην Κορινθία και στην Ηλεία. Μεγάλες οι καταστροφές σε ΈΒρο (και στο δάσος της Δαδιάς) και στη Λέσβο, όπου επίσης καίνε τα μέτωπα...
Έβρος: Τρία τα πύρινα μέτωπα – «Μάχη» με τον χρόνο και τις φλόγες δίνουν οι πυροσβέστες
Οι συνεχιζόμενες εναλλαγές της κατεύθυνσης αλλά και της έντασης του ανέμου στη Δαδιά εξακολουθούν να υποδαυλίζουν την πολυήμερη πλέον προσπάθεια κατάσβεσης της πυρκαγιάς που στο πέρασμά της αφήνει σημαντικά λαβωμένο το Εθνικό Πάρκο. Με τη φωτιά να καίει από την Πέμπτη (21/07), παρότι έχουν κινητοποιηθεί πολλές δυνάμεις.
Μιλώντας στο ΑΠΕ-ΜΠΕ, ο προϊστάμενος του Δασαρχείου Αλεξανδρούπολης, Γιώργος Πιστόλας, ο οποίος μαζί με τους συναδέλφους του των όμορων του Σουφλίου δασαρχείων και με μέλη δασικών συνεταιρισμών βρίσκονται στην περιοχή προκειμένου να συμβάλουν στην υλοτομία και στη δημιουργία αντιπυρικών ζωνών, αναφέρει ότι λίγο πριν από τις 21:00 η φωτιά, λόγω του δυνατού αέρα, πέρασε την αντιπυρική ζώνη νότια του Κέντρου Ενημέρωσης της Μονάδας Διαχείρισης του Εθνικού Πάρκου, απειλώντας το Κέντρο το οποίο έχει εκκενωθεί, ενώ από το σημείο έχει απομακρυνθεί και το κινητό επιχειρησιακό κέντρο της Πυροσβεστικής Υπηρεσίας «Όλυμπος».
Περιγράφοντας την εικόνα που παρουσιάζει η πυρκαγιά, ο κ. Πιστόλας αναφέρει χαρακτηριστικά: «Αυτό που καλούμαστε να αντιμετωπίσουμε μετά το μεσημέρι είναι τρία ενεργά και μεγάλα μέτωπα. Το ένα κινείται βόρεια προς την περιοχή του μοναστηριού της Δαδιάς και του δασικού φυτωρίου. Περιμετρικά του μοναστηριού, που έχει εκκενωθεί, έχει γίνει αντιπυρική ζώνη για την προστασία του. Με τα ως τώρα δεδομένα η εκτίμηση είναι ότι το συγκεκριμένο μέτωπο θα ελεγχθεί ή θα σβήσει στις επόμενες μέρες, ενδεχομένως και αύριο. Το θέμα είναι τα άλλα δύο μέτωπα. Το ένα είναι νότια προς το φράγμα της Λύρας λίγο πιο πάνω από εκεί όπου ξεκίνησε η πυρκαγιά, σε μια περιοχή στην οποία επιχειρούσαν και τα πυροσβεστικά ελικόπτερα με ρίψεις νερού, βόρεια του φράγματος.
Το μεγαλύτερο μέτωπο είναι στο δυτικό τμήμα του δάσους, όπου επιχειρούν υλοτόμοι για τη δημιουργία νέας αντιπυρικής ζώνης που θα παρέχει τη δυνατότητα προσέγγισης του μετώπου της πυρκαγιάς στις επίγειες δυνάμεις πυρόσβεσης. Το συγκεκριμένο σημείο είναι ιδιαίτερα σημαντικό καθώς εάν η πυρκαγιά το περάσει, απειλούνται οι φωλιές του Μαυρόγυπα».
Εκτροπή της κυκλοφορίας των οχημάτων λόγω της φωτιάς
Στην εκτροπή της κυκλοφορίας των οχημάτων και στα δύο ρεύματα στο ύψος του κόμβου Λύρας-Λαγυνών προχώρησαν οι αρμόδιες Αρχές, λόγω της εξάπλωσης της πυρκαγιάς παράλληλα με την εθνική οδό, σύμφωνα με τον αντιπεριφερειάρχη Έβρου, Δημήτρη Πέτροβιτς. Για την κίνηση των οχημάτων χρησιμοποιείται το παλιό εθνικό οδικό δίκτυο.
Το σχέδιο Στυλιανίδη για τη φωτιά στη Δαδιά – Οι νέες αντιπυρικές ζώνες και οι αναπροσαρμογές επί του πεδίου
Αναπροσαρμογές επί του πεδίου αποφασίστηκαν, έτσι ώστε να αντιμετωπιστεί το δύσκολο ανάγλυφο της περιοχής, όπου μαίνεται από την Πέμπτη 21 Ιουλίου η πυρκαγιά στο Εθνικό Πάρκο στη Δαδιά, όπως δήλωσε από τη Δαδιά Έβρου ο υπουργός Κλιματικής Κρίσης και Πολιτικής Προστασίας, Χρήστος Στυλιανίδης.
Ο κ. Στυλιανίδης ανέφερε ότι βρίσκονται στη διαδικασία διάνοιξης νέων προσβάσεων, νέων αντιπυρικών ζωνών, κυρίως στο νοτιοδυτικό μέτωπο της πυρκαγιάς που παρουσιάζει τη μεγαλύτερη δυσκολία πρόσβασης και διαχείρισης. «Παλεύουν οι δυνάμεις εκεί, μπουλντόζες ανοίγουν αντιπυρικές ζώνες, έχουν μπει μέσα και οι δασικοί, και οι πυροσβέστες έχουν κάνει εγκαταστάσεις και τρέχουν. Όλο το βράδυ θα είμαστε εδώ. Με τις νέες εγκαταστάσεις των πυροσβεστικών δυνάμεων και τις νέες αντιπυρικές ζώνες, σιγά σιγά κερδίζουμε έδαφος. Εδώ και τρεις ημέρες η πυρκαγιά δεν μπορεί να επεκταθεί σε μια τόσο δύσκολη περιοχή, αυτό αποτελεί ένδειξη της δουλειάς που γίνεται στο πεδίο», σημείωσε ο κ. Στυλιανίδης.
Όπως είπε, μετά την επανεξέταση της κατάστασης το πρωί, μαζί με τα επιτελικά τους στελέχη και με βάση τα νέα δεδομένα, αποφασίστηκαν αναπροσαρμογές επί του πεδίου, έτσι ώστε να αντιμετωπίσουν, όπως τόνισε, «το δύσκολο ανάγλυφο της περιοχής και τις δύσκολες προσβάσεις, γιατί το δάσος είναι προστατευόμενο, συνεπώς οι προσβάσεις σε αυτό είναι περιορισμένες» και προσέθεσε ότι η επιπλέον δυσκολία είναι οι συνεχείς εναλλαγές του ανέμου.
«Με αυτά τα δεδομένα είχαμε συνεχείς αναζωπυρώσεις και δίνεται μάχη. Όλοι οι εμπλεκόμενοι, πυροσβέστες, δασικοί, στρατός, αστυνομία, εθελοντές, Πολιτική Προστασία είναι όλοι μαζί επί του πεδίου. Πραγματοποιήσαμε αυτοψία μέσα στο δάσος και εναέρια αυτοψία με τον κ. Αμυρά, και μαζί με τους επιτελικούς, καθορίστηκαν οι νέοι σχεδιασμοί», υπογράμμισε ο κ. Στυλιανίδης.
«Συνεχίζουμε. Η μάχη που δίνουν όλοι εδώ είναι ηρωική μάχη. Παρ’ όλες τις δυσκολίες, είμαστε όλοι αποφασισμένοι να σώσουμε το εθνικό πάρκο της Δαδιάς. Αξιοποιώντας και την επιστημονική γνώση με τα τεχνολογικά εργαλεία που έχουμε στη διάθεσή μας, αλλά και τη γνώση των ανθρώπων του τόπου εδώ που γνωρίζουν πολύ καλά το δάσος, υλοτόμους κι ανθρώπους που ζουν στην περιοχή. Είναι ένας συνδυασμός που θα βοηθήσει πολύ, έτσι ώστε το συντομότερο να έχουμε αίσιο τέλος και να περιορίσουμε όσο μπορούμε τις επιπτώσεις», ανέφερε χαρακτηριστικά ο κ. Στυλιανίδης.
Ο ίδιος σχολίασε, ακόμη, ότι η επιλογή των εναερίων μέσων που επιχειρούν στην περιοχή γίνεται με επιχειρησιακά κριτήρια και μόνο, σημειώνοντας ότι φέτος η χώρα μας διαθέτει περισσότερα παρά ποτέ εναέρια μέσα δασοπυρόσβεσης (40 από τον εθνικό εναέριο στόλο και 46 μισθωμένα).
Στη συνέχεια ο υφυπουργός Περιβάλλοντος, Γιώργος Αμυράς διέψευσε δημοσιεύματα περί κατάργησης του Φορέα Διαχείρισης Εθνικού Πάρκου Δάσους Δαδιάς – Λευκίμης – Σουφλίου σημειώνοντας: «Θα ήθελα να καταρρεύσω και να ξεδιαλύνω ένα fake news που κυκλοφορεί κυρίως στα κοινωνικά δίκτυα ότι καταργήθηκε ο φορέας του Εθνικού Πάρκου. Αυτό είναι ψευδές. Ο φορέας αντικαταστάθηκε από τη Μονάδα Διαχείρισης. Δώσαμε πολλούς πόρους στην περιοχή εδώ για να προλάβουμε να ενισχύσουμε την άμυνα του δάσους. Οι άνθρωποι της Μονάδας βρίσκονται αυτή τη στιγμή στην πρώτη γραμμή κι εργάζονται σκληρά». Επιπλέον, τόνισε: «Το δάσος της Δαδιάς αποτελεί ένα κρίσιμο, σπάνιο και ευαίσθητο δασικό οικοσύστημα που ξεπερνά τα όρια της Ελλάδας. Είναι μοναδικό και έχει πανευρωπαϊκή σημασία. Γι’ αυτό λοιπόν δίνουμε τη μέγιστη δυνατή προσοχή, με τη μεγαλύτερη ευαισθησία και κάνουμε ό,τι είναι ανθρωπίνως δυνατόν για να το προστατεύσουμε» και προσέθεσε ότι πριν από ενάμισι μήνα, εδώ στο δάσος της Δαδιάς, το υπουργείο Περιβάλλοντος σε συνεργασία με το υπουργείο Κλιματικής Κρίσης και Πολιτικής Προστασίας και τον υπουργό, Χρήστο Στυλιανίδη, προχώρησαν σε προληπτικά έργα.
»Διανοίξαμε και συντηρήσαμε 440 χλμ δασικών δρόμων μέσα στη Δαδιά, όπως επίσης και 140 χλμ αντιπυρικών ζωνών. Κι αυτές οι παρεμβάσεις έχουν βοηθήσει πολύ στον αγώνα που δίνουμε όλοι, πυροσβέστες, δασικοί υπάλληλοι, εθελοντές, άνθρωποι της τοπικής αυτοδιοίκησης, στρατός και κάτοικοι για να διαφυλάξουμε και να σώσουμε αυτό ευαίσθητο δασικό οικοσύστημα. Τώρα ο αγώνας μας και η αγωνία μας είναι να προστατεύσουμε τη μοναδική αποικία μαυρόγυπα που υπάρχει στην Ευρώπη και βρίσκετε εδώ, σε αυτό το δάσος. Με αυτόν τον σκοπό, εδώ και ώρες από το πρωί, διανοίγουμε μια τεράστια αντιπυρική ζώνη στα νοτιοδυτικά μέσα στον πυρήνα του δάσους», κατέληξε ο κ. Αμυράς.
Φωτιά στη Λέσβο: «Δύσκολη η νύχτα, έχουμε αναζωπυρώσεις», λέει ο δήμαρχος Μυτιλήνης
Για δεύτερο 24ωρο μαίνεται η μάχη με τις φλόγες στη Λέσβο, στις περιοχές των Βατερών και της Βρίσας.
Μιλώντας στο κεντρικό δελτίο ειδήσεων του MEGA, ο δήμαρχος Μυτιλήνης, Στρατής Κύτελης, έκανε λόγο για μια δύσκολη νύχτα. «Δυστυχώς, ενώ οι ελπίδες μας ήταν ότι η φωτιά είναι ελεγχόμενη, έχουμε αναζωπυρώσεις στο σημείο που ξεκίνησε η φωτιά».
Σύμφωνα με τον κ. Κύτελη, «μαγαζιά, επιχειρήσεις και κατοικίες έχουν καεί. Έχουμε αναζωπυρώσεις και δυστυχώς με τη δύση του ηλίου δε θα έχουμε εναέρια μέσα για να κατασβέσουν τη φωτιά. Το σημείο είναι δύσβατο και θα είναι δύσκολο οι επίγειες δυνάμεις να επιχειρήσουν».
Όπως λέει ο δήμαρχος της Μυτιλήνης, «η νύχτα θα είναι δύσκολη, όλοι καταβάλλουν υπεράνθρωπες προσπάθειες για να την σβήσουν». Υπό τον φόβο της ενίσχυσης και της αλλαγής φοράς των ανέμων, έχει εκκενωθεί προληπτικά ο οικισμός του Σταυρού.
Ένοπλες Δυνάμεις: Μάχη με τις φωτιές σε Έβρο και Λέσβο
Οι Ένοπλες Δυνάμεις συνδράμουν με προσωπικό και μέσα στις προσπαθείς κατάσβεσης των πυρκαγιών στη Δαδιά Έβρου και τα Βατερά Λέσβου.
Συγκεκριμένα, στο δάσος της Δαδιάς Έβρου επιχειρούν 2 αεροπλάνα PZL καθώς και 2 ελικόπτερα Σινούκ. Έως τώρα, έχουν διατεθεί 8 προωθητές γαιών, ένας φορτωτής, 4 υδροφόρες, 32 άτομα της ομαδας «Δευκαλίωνα» αλλά και 80 άτομα που υποστηρίζουν τις εργασίες των μηχανημάτων.
Για την πυρκαγιά στα Βατερά Λέσβου, από εναέρια μέσα, επιχειρούν 2 Καναντέρ και 2 PZL ενώ έως τώρα έχουν διατεθεί 4 πυροσβεστικά οχήματα, 2 υδροφόρες, 3 λεωφορεία, ένα ασθενοφόρο, ένα φορειοφόρο όχημα, ένα γερανοφόρο όχημα Oshkosh, ένα όχημα Hummer, 2 προωθητές γαιών, ένα βυτιοφόρο πετρελαίου, 2 βυτιοφόρα καυσίμου JP-8 (αεροπορικό καύσιμο, 44 άτομα του «Σχεδίου Ξενοκράτης» καθώς και 30 άτομα που υποστηρίζουν τις εργασίες των μηχανημάτων.
Φωτιά στη Μεσσηνία: Διάσπαρτες εστίες - Εκκενώθηκε η Χρυσοκελλαριά
Σε εξέλιξη εξακολουθεί να βρίσκεται, σύμφωνα με την πυροσβεστική, η φωτιά που εκδηλώθηκε το Σάββατο (23/07) σε αγροτοδασική στην περιοχή Ακριτοχώρι, του δήμου Πύλου – Νέστορος, στη Μεσσηνία.
Συγκεκριμένα, στο μέτωπο της φωτιάς στη Μεσσηνία επιχειρούν ισχυρές επίγειες πυροσβεστικές δυνάμεις, που αποτελούνται από 115 πυροσβέστες με 10 ομάδες πεζοπόρων τμημάτων και 23 οχήματα. Επίσης, το έργο των πυροσβεστικών δυνάμεων συνδράμουν οχήματα και μηχανήματα της αυτοδιοίκησης.
Διάσπαρτες εστίες παρέμεναν το πρωί της Κυριακής (24/07) στην Πύλο της Μεσσηνίας, ενώ προηγουμένως είχε παρθεί η απόφαση για την προληπτική εκκένωση του οικισμού της Χρυσοκελλαριάς.
Συγκεκριμένα, σύμφωνα με σχετική δημοσίευση της τοπικής ιστοσελίδας «tharrosnews.gr», η κατάσταση το πρωί ήταν καλύτερη, αφού πλέον δεν υπάρχουν ενεργά μέτωπα στη Χρυσοκελλαριά του δήμου Πύλου - Νέστορος, στην οποία μεταφέρθηκε η πυρκαγιά που ξέσπασε στο Ακριτοχώρι.
Οι πυροσβεστικές δυνάμεις έδωσαν «μάχη» με τις φλόγες το βράδυ του Σαββάτου (23/07), αφού η κατεύθυνση του ανέμου άλλαξε πορεία με αποτέλεσμα η πυρκαγιά να οδηγηθεί προς την ΕΟ Κορώνης - Φοινικούντας.
Η φωτιά τις προηηγούμενες ώρες έκαιγε σε δύσβατη περιοχή μεταξύ Χρυσοκελλαριάς και Ακριτοχωρίου και επεκτάθηκε σε μεγάλο μέτωπο προς τον πρώτο οικισμό, με τις πυροσβεστικές δυνάμεις να επιχειρούν να τη διασπάσουν προτού φτάσει στα σπίτια του χωριού και όσο κινείτο σε ορεινή περιοχή. Επισημαίνεται, τέλος, ότι καλλιέργειες έχουν καταστραφεί στα Πλανέικα, απ' όπου η φωτιά πέρασε πολύ κοντά στις οικίες.
Μαίνεται η φωτιά στην Ηλεία – Καίγονται σπίτια, εκκενώνεται κατασκήνωση
Συναγερμός έχει σημάνει ξανά στην Ηλεία και συγκεκριμένα, στα Μακρίσια από φωτιά που ξέσπασε σε αγροτοδασική έκταση, το μεσημέρι της Κυριακής (24/07), ενώ είχε σβηστεί η πυρκαγιά σε δασικές εκτάσεις στις περιοχές Τραγανό και Βάρδα.
Σύμφωνα με πληροφορίες από το «Patrisnews», η φωτιά καίει κοντά σε λιοστάσια και βρίσκεται σε δύσβατη περιοχή, με αποτέλεσμα να μη μπορούν να την προσεγγίσουν οχήματα της Πυροσβεστικής.
Στο σημείο επιχειρούν εναέρια μέσα.
Επίσης, η φωτιά κινείται πλέον προς Κρέστενα. Συγκεκριμένα, η πυρκαγιά έχει ήδη μπει στα πρώτα σπίτια στην Σκιλλουντία και έχει δοθεί εντολή για προληπτική εκκένωση στην κατασκήνωση της Φρίξας.
Σημειώνεται ότι το 112 που δόθηκε, είναι προληπτικό για ενημέρωση και δεν υπάρχει κίνδυνος.
Υπό μερικό έλεγχο οι φωτιές σε Κόρινθο και Ζωφριά
Εν τω μεταξύ, υπό μερικό έλεγχο τέθηκαν οι φωτιές σε Κόρινθο και Ζωφριά. Συγκεκριμένα, υπό μερικό έλεγχο έχει τεθεί, σύμφωνα με την Πυροσβεστική, η φωτιά που εκδηλώθηκε τις μεσημβρινές ώρες σε δασική έκταση κοντά στον οικισμό Βλασέικα, της δημοτικής ενότητας Σαρωνικού, στην Κορινθία.
Στο σημείο εξακολουθούν να επιχειρούν 18 πυροσβέστες με επτά οχήματα και δύο πυροσβεστικά αεροπλάνα, προκειμένου να θέσουν υπό πλήρη έλεγχο τη φωτιά και να αντιμετωπίσουν τυχόν αναζωπυρώσεις.
Επιπλέον, υπό μερικό έλεγχο τέθηκε η πυρκαγιά που ξέσπασε σήμερα το πρωί σε χαμηλή βλάστηση στη Ζωφριά, στους πρόποδες του Ποικίλου Όρους. Σύμφωνα με την Πυροσβεστική, η φωτιά εκδηλώθηκε λίγο πριν από τις 11:30 το πρωί στο τέρμα της οδού Θέτιδος του Δήμου Φυλής και δεν απείλησε σπίτια.
Στο σημείο επιχείρησαν 41 πυροσβέστες με 2 ομάδες πεζοπόρων τμημάτων, 9 οχήματα, 4 αεροσκάφη και 1 ελικόπτερο.
Ηράκλειο: Οριοθετήθηκε η πυρκαγιά στον Δήμο Φαιστού
Οριοθετήθηκε η πυρκαγιά που εκδηλώθηκε λίγο πριν από τις 4 το απόγευμα της Κυριακής (24/07) σε περιοχή του Δήμου της Περιφερειακής Ενότητας Ηρακλείου.
Είκοσι πέντε οχήματα της Πυροσβεστικής με 75 πυροσβέστες, ομάδες δασοκομάντο, εθελοντές, κάτοικοι και υδροφόρες του δήμου και της Περιφέρειας συνεισέφεραν στο να περιοριστεί ο κίνδυνος η φωτιά να απειλήσει τους οικισμούς Κουσές και Πετροκέφαλι.
Στο σημείο παραμένουν ισχυρές δυνάμεις της Πυροσβεστικής υπό το φόβο αναζωπύρωσης της πυρκαγιάς.
(πληροφορίες από lawandorder.gr)
Ξεκινά από σήμερα Παρασκευή (15/07) - όπως είχε ανακοινωθεί - η πίστωση των χρημάτων του Power Pass στους τραπεζικούς λογαριασμούς των δικαιούχων. «Φωνές» για τα ποσά που δίνονται πίσω. Την προσοχή των πολιτών εφιστά η ΔΕΗ, καθώς σε ανακοίνωσή της, προειδοποιεί για νέα απάτη με φόντο το power pass και τις καταβολές των χρημάτων που αναμένονται από αύριο.
Ειδικότερα, την Πέμπτη (14/07) αναρτήθηκαν στη σχετική εφαρμογή (vouchers.gov.gr) τα ποσά, ενώ παράλληλα απεστάλη και ενημερωτικό e-mail.
Η επιστροφή χρημάτων αφορά πάνω από 1,9 εκατ. δικαιούχους που θα λάβουν χρήματα ως αναδρομικά για τις αυξήσεις που έφερε η ρήτρα αναπροσαρμογής στο διάστημα από την 1η Δεκεμβρίου 2021 έως και τον Ιούνιο του 2022.
Για τους υπόλοιπους 600.000 δικαιούχους η αποζημίωση θα κατατεθεί μέχρι τις 22 Ιουλίου, αφού πρώτα ολοκληρωθεί ο έλεγχος που γίνεται στα στοιχεία των δηλώσεων.
Οι πληρωμές θα γίνουν εφάπαξ, ώστε οι δικαιούχοι να πάρουν το σύνολο των χρημάτων σε μία δόση.
Τα ποσά των επιστροφών ξεκινούν από τα 18 ευρώ και φτάνουν έως τα 600 ευρώ.
Τι σημαίνουν οι χαρακτηρισμοί των σταδίων της αίτησης
ΕΚΚΡΕΜΕΙ ΥΠΟΒΟΛΗ: o χρήστης δεν έχει πατήσει «υποβολή αίτησης».
ΑΠΟΡΡΙΦΘΕΙΣΑ: έχει απορριφθεί η αίτηση. Εάν πλοηγηθείτε στη σελίδα της αίτησης θα δείτε στο πάνω μέρος περισσότερες πληροφορίες (π.χ. αδυναμία διασταύρωσης του ΑΦΜ ως δικαιούχου/συνδικαιούχου στο δηλωθέν ΙΒΑΝ). Απορριφθείσες αιτήσεις μπορούν να αλαχθούν και να επανυποβληθούν.
ΥΠΟ ΕΛΕΓΧΟ: η αίτηση έχει υποβληθεί και βρίσκεται σε διαδικασία ελέγχου των ακολούθων.
- αν το ΑΦΜ είναι δικαιούχος / συνδικαιούχος στο δηλωθέν IBAN.
- αν ο αιτών/αιτούσα δεν έχει ξεπεράσει την μία (1) αίτηση για τον ίδιο και τον/την σύζυγο και δεν έχει ξεπεράσει τις τρεις (3) για τα προστατευόμενα μέλη.
ΥΠΟ ΕΚΚΑΘΑΡΙΣΗ: για τις αιτήσεις που βρίσκονται σε αυτή την κατάσταση, έχουν ολοκληρωθεί οι έλεγχοι για το ΙΒΑΝ/ΑΦΜ, και δεν απαιτούνται επιπλέον ενέργειες από τον πολίτη. Μετά την ολοκλήρωση της Περιόδου Υποβολής αιτήσεων (1η Ιουλίου 2022) θα εκτελεστούν οι διασταυρώσεις με τα στοιχεία λογαριασμών που θα δοθούν από τους παρόχους, ώστε να γίνει η εκκαθάριση και να υπολογιστεί το ποσό της επιδότησης.
ΠΡΟΣ ΑΠΟΣΤΟΛΗ ΣΤΟ ΤΡΑΠΕΖΙΚΟ ΙΔΡΥΜΑ: το ποσό επιστροφής (για πληρωμή, μέσω ΔΙΑΣ) θα αποσταλεί στο επιλεγμένο Χρηματοπιστωτικό Ίδρυμα.
ΠΡΟΣ ΕΠΕΞΕΡΓΑΣΙΑ ΑΠΟ ΤΡΑΠΕΖΙΚΟ ΙΔΡΥΜΑ: η εντολή για το ποσό επιστροφής έχει αποσταλεί στο επιλεγμένο Χρηματοπιστωτικό Ίδρυμα μέσω ΔΙΑΣ και περιμένουμε από την τράπεζα να κάνει την πληρωμή.
ΕΓΚΡΙΘΕΙΣΑ: έχουμε λάβει απάντηση από το επιλεγμένο Χρηματοπιστωτικό Ίδρυμα ότι εκτέλεσε επιτυχώς την πληρωμη. Ο/Η δικαιούχος μπορεί να ελέγξει το λογαριασμό του/της.
«Έστησαν» και απάτες, τι ανακοίνωσε η ΔΕΗ
Την προσοχή των πολιτών εφιστά η ΔΕΗ, καθώς σε ανακοίνωσή της, προειδοποιεί για νέα απάτη με φόντο το power pass και τις καταβολές των χρημάτων που αναμένονται από αύριο.
Όπως φαίνεται επιτήδειοι προσπαθούν να εξαπατήσουν με «αλίευση» ή αλλιώς «phishing» τους δικαιούχους της ενίσχυσης, ζητώντας τους προσωπικά στοιχεία μέσω τηλεφωνικών κλήσεων και ηλεκτρονικών μηνυμάτων.
Στο πλαίσιο αυτό, η ΔΕΗ ενημερώνει τους πελάτες της ότι:
– δεν εμπλέκεται σε κανένα στάδιο της διαδικασίας για την πίστωση των ποσών των δικαιούχων του power pass,
-δεν θα ζητήσει ποτέ από τους πελάτες τα στοιχεία e-banking και το IBAN του λογαριασμού τους.
Γι’αυτό και καλεί τους καταναλωτές να ακολουθήσουν πιστά και προσεκτικά τις οδηγίες που προβλέπονται στη σελίδα https://vouchers.gov.gr/powerpass
Power Pass: Τι ισχύει για όσους δεν πληρωθούν σήμερα το επίδομα ρεύματος
Αγωνία τέλος για χιλιάδες δικαιούχους καθώς από σήμερα θα πιστώνονται στους τραπεζικούς λογαριασμούς των δικαιούχων του Power Pass τα ποσά της επιδότησης ρεύματος για τα οποία έχουν ενημερωθεί από χθες είτε μπαίνοντας στην πλατφόρμα, είτε με μέιλ, είτε με sms στο κινητό τους.
Τι θα γίνει με όσους δεν έχουν πληρωθεί
Συνολικά έχουν υποβληθεί 2.952.778 αιτήσεις, που αφορούν 2.530.597 φυσικά πρόσωπα και από αυτά, αναρτώνται ενημερωτικά εκκαθάρισης για τα περίπου 1,9 εκατ. και τα οποία αναμένεται να πληρωθούν σήμερα, με το συνολικό ποσό να ανέρχεται σε περίπου 230 εκατ. ευρώ.
Όσοι λοιπόν δεν πληρωθούν σήμερα, όπως αναφέρει το «dikaiologitika.gr», δεν χρειάζεται να αγχωθούν, ούτε να κάνουν κάτι καθώς για τα υπόλοιπα φυσικά πρόσωπα συνεχίζεται ο έλεγχος των στοιχείων και όσα εξ αυτών είναι δικαιούχοι αναμένεται να πληρωθούν την ερχόμενη εβδομάδα, μετά την έκδοση των σχετικών ενημερωτικών εκκαθαριστικών.
Όπως και να έχει, πάντως, ο δικαιούχος θα ενημερωθεί για την εξέλιξη της αίτησής του στο email που έχει δηλώσει. Εάν δεν επιθυμεί να περιμένει, μπορεί να εισέρχεται στην ηλεκτρονική πλατφόρμα vouchers.gov.gr, με τους προσωπικούς του κωδικούς Taxisnet και να βλέπει το στάδιο στο οποίο βρίσκεται.
Όπως αναφέρθηκε παραπάνω, τα μηνύματα που θα βγάζει, είναι τα εξής:
«Προς αποστολή στο τραπεζικό ίδρυμα»: Αν δείτε αυτό το μήνυμα σημαίνει πως το ποσό επιστροφής (για πληρωμή, μέσω ΔΙΑΣ) θα αποσταλεί στην επιλεγμένη τράπεζα.
«Προς επεξεργασία από τραπεζικό ίδρυμα»: Το μήνυμα αυτό σημαίνει πως η εντολή για το ποσό επιστροφής έχει αποσταλεί στην επιλεγμένη τράπεζα μέσω ΔΙΑΣ και αναμένεται από την τράπεζα να κάνει την πληρωμή
«Εγκριθείσα»: Σε αυτή την περίπτωση, έχουμε λάβει απάντηση από την επιλεγμένη τράπεζα ότι εκτέλεσε επιτυχώς την πληρωμή και συνεπώς ο δικαιούχος μπορεί να ελέγξει το λογαριασμό του/της.
Αν δεν βλέπετε καμία από τις παραπάνω ενδείξεις τότε μπορείτε να απευθυνθείτε στο τηλ. 210 7000810 (εργάσιμες ημέρες: Δευτέρα - Παρασκευή 9:00 - 17:00)
Χαρακτηριστικό είναι οτι κατά πάσα πιθανότητα όσοι δεν θα πληρωθούν σήμερα το ξέρουν ήδη, καθώς όταν μπαίνουν στην ειδική πλατφόρμα η αίτηση γράφει δίπλα ακόμα ΥΠΟ ΕΚΚΑΘΑΡΙΣΗ και αφορά τις αιτήσεις που βρίσκονται σε αυτή την κατάσταση, έχουν ολοκληρωθεί οι έλεγχοι για το ΙΒΑΝ/ΑΦΜ, και δεν απαιτούνται επιπλέον ενέργειες από τον πολίτη.
Ο Υπουργός Περιβάλλοντος και Ενέργειας Κώστας Σκρέκας είχε ήδη προειδοποιήσει για την καταβολή των ποσών σε δυο δόσεις καθώς σε πολλές αιτήσεις απαιτείται έλεγχος και διασταύρωση στοιχείων.
Υπενθυμίζεται πως τα ποσά που θα δουν οι δικαιούχοι στους τραπεζικούς τους λογαριασμούς κυμαίνονται από 18 έως και 600 ευρώ, τα οποία έρχονται για να στηρίξουν τα νοικοκυριά στο υψηλό κόστος των λογαριασμών ρεύματος που έλαβαν τους προηγούμενους μήνες.
Αντίστροφα μετρά ο χρόνος την πληρωμή του Power Pass, προκειμένου να ξεκινήσει η διαδικασία επιστροφής μέρος των χρημάτων που οι καταναλωτές πλήρωσαν το προηγούμενο διάστημα στους «παραφουσκωμένους» λογαριασμούς του ηλεκτρικού ρεύματος.
Όπως αναφέρει το «dikaiologitka.gr», ο προγραμματισμός του υπουργείου Οικονομικών αναφέρει ότι η πληρωμή για το Power Pass -επίδομα ρεύματος θα γίνει την ερχόμενη Παρασκευή (15/07) ή εάν υπάρξουν προβλήματα στην τελική ευθεία για την εκκαθάριση η καταβολή των χρημάτων θα γίνει τη Δευτέρα.
Ορισμένοι καταναλωτές θα δουν, ωστόσο, αργότερα τα χρήματα στους λογαριασμούς τους καθώς οι έλεγχοι θα συνεχιστούν για μερικές ημέρες ακόμα.
Οι δικαιούχοι θα ενημερωθούν για την εξέλιξη της αίτησής τους στο email που έχουν δηλώσει. Ωστόσο, υπάρχει και η δυνατότητα ελέγχου της αίτησης μέσω της ηλεκτρονικής πλατφόρμας vouchers.gov.gr, με τους προσωπικούς κωδικούς Taxisnet, προκειμένου οι ενδιαφερόμενοι να δουν σε ποιο στάδιο βρίσκεται.
Οι έλεγχοι από τις περίπου 2,8 εκατομμύρια εμπρόθεσμες αιτήσεις που υπεβλήθησαν, άφησαν σε πρώτη φάση απ΄ έξω περίπου 800.000 καταναλωτές.
Αιτίες ήταν είτε ότι ξεπερνούσαν το εισοδηματικό όριο των 45.000 ευρώ, είτε κατά τις διασταυρώσεις εντοπίστηκαν λάθη ή παραλείψεις τα οποία απέκλεισαν τους συγκεκριμένους καταναλωτές από την διαδικασία ή για το ίδιο ρολόι είχαν υποβληθεί περισσότερες από μια αιτήσεις ή για τις αιτήσεις που υποβλήθηκαν οι επιβαρύνσεις είχαν καλυφθεί από την κρατική επιδότηση και τις επιδοτήσεις από των εκπτώσεων από τους παρόχους.
Μετά την ολοκλήρωση του πρώτου σταδίου της διαδικασίας ελέγχων περίπου 2 εκατομμύρια μοναδικά ΑΦΜ θα δουν στον τραπεζικό τους λογαριασμό κατατεθειμένα από 18 έως και 600 ευρώ, ανάλογα με την κατανάλωση που είχε καταγραφεί στους λογαριασμούς ρεύματος οι οποίοι είχαν εκδοθεί μεταξύ 1 Δεκεμβρίου 2021 και 31 Μαΐου 2022.
Οι δικαιούχοι της αποζημίωσης του επιδόματος ρεύματος, το οποίο είναι αφορολόγητο και ακατάσχετο, μπορούν να αξιοποιήσουν τα χρήματα όπως επιθυμούν χωρίς καμία δέσμευση.
Αυτό σημαίνει ότι οι καταναλωτές μπορούν να χρησιμοποιήσουν τα χρήματα για οποιαδήποτε δαπάνη επιθυμούν οι ίδιοι. Απαραίτητη προϋπόθεση για την καταβολή του επιδόματος είναι στην αίτηση στην ηλεκτρονική πλατφόρμα να έχουν δηλώσει τον αριθμό τραπεζικού λογαριασμού (ΙΒΑΝ).
Όσοι επιχείρησαν να παραπλανήσουν το σύστημα, κινδυνεύουν να εντοπιστούν στον επόμενο γύρο διασταυρώσεων που θα «τρέξουν» τις επόμενες ημέρες από τις αρμόδιες ελεγκτικές υπηρεσίες. Όσοι εντοπιστούν θα κληθούν όχι μόνο να επιστρέψουν το ποσό το οποίο πιστώθηκε στους λογαριασμούς τους, αλλά το ποσό που θα απαιτηθεί θα είναι διπλάσιο σε ύψος από εκείνο της επιστροφής που τους πιστώθηκε.
Υπενθυμίζεται ότι η επιστροφή χρημάτων καλύπτει το 60% της ρήτρας αναπροσαρμογής που επιβλήθηκε στην κατανάλωση ηλεκτρικού ρεύματος για λογαριασμούς οι οποίοι έχουν εκδοθεί από 1η Δεκεμβρίου 2021 έως 31 Μαΐου 2022 μετά την αφαίρεση της κρατικής επιδότηση και των εκπτώσεων από τους παρόχους.
Η επιστροφή αφορά αποκλειστικά την κύρια κατοικία και τη φοιτητική στέγη, με την ελάχιστη επιστροφή να διαμορφώνεται στα 18 ευρώ και τη μέγιστη να μην υπερβαίνει τα 600 ευρώ.
Οι καταναλωτές, έως την καταβολή των χρημάτων μπορούν να παρακολουθήσουν την πορεία της αίτησής τους μέσα από την πλατφόρμα του Power Pass. Με τους κωδικούς του Taxisnet εισέρχονται στην αίτησή τους η οποία έχει σήμανση ανάλογα με την εξέλιξή της.
Power Pass: Τι αποκάλυψε ο Σκρέκας
Από Παρασκευή 15 Ιουλίου οι πληρωμές για το Power Pass στους δικαιούχους σύμφωνα με όσα είπε και ο Υπουργός Ενέργειας Κώστα Σκρέκα. H επιστροφή των χρημάτων για την επιδότηση στο ρεύμα θα γίνει σταδιακά αλλά ο στόχος είναι να πιστωθεί όλο το ποσό μαζί στον κάθε δικαιούχο.
Συνολικά υποβλήθηκαν 2,8 εκατομμύρια αιτήσεις σε σύνολο 4 εκατομμυρίων νοικοκυριών που πληρούν το εισοδηματικό όριο των 45.000 ευρώ καθαρού οικογενειακού εισοδήματος.
Οι έλεγχοι, όπως όλα δείχνουν και επιβεβαίωσε ο υπουργός Περιβάλλοντος και Ενέργειας, Κώστας Σκρέκας ολοκληρώνονταικαι έτσι την Παρασκευή 15 Ιουλίου αναμένεται η πληρωμή για το επίδομα ρεύματος.
Ο δικαιούχος θα ενημερωθεί για την εξέλιξη της αίτησής του στο email που έχει δηλώσει. Εάν δεν επιθυμεί να περιμένει, μπορεί να εισέρχεται στην ηλεκτρονική πλατφόρμα vouchers.gov.gr, με τους προσωπικούς του κωδικούς Taxisnet και να βλέπει το στάδιο στο οποίο βρίσκεται.
Τα μηνύματα που θα βγάζει, είναι πλέον τα εξής:
«Προς αποστολή στο τραπεζικό ίδρυμα»: Το ποσό επιστροφής (για πληρωμή, μέσω ΔΙΑΣ) θα αποσταλεί στην επιλεγμένη τράπεζα.
«Προς επεξεργασία από τραπεζικό ίδρυμα»: Η εντολή για το ποσό επιστροφής έχει αποσταλεί στην επιλεγμένη τράπεζα μέσω ΔΙΑΣ και αναμένεται από την τράπεζα να κάνει την πληρωμή.
«Εγκριθείσα»: Σημαίνει ότι έχουμε λάβει απάντηση από το επιλεγμένο Χρηματοπιστωτικό Ίδρυμα ότι εκτέλεσε επιτυχώς την πληρωμή. Ο/Η δικαιούχος μπορεί να ελέγξει το λογαριασμό του/της.
Τα ποσά που θα δουν οι δικαιούχοι στους τραπεζικούς τους λογαριασμούς κυμαίνονται από 18 έως και 600 ευρώ, τα οποία έρχονται να... σβήσουν ένα μέρος της μεγάλης «φωτιάς» στα τιμολόγια του ηλεκτρικού ρεύματος για το διάστημα Δεκεμβρίου 2021 -Μαΐου 2022.
Με δόσεις η πληρωμή
Όπως τόνισε ο Υπουργός, η επιστροφή των χρημάτων για την επιδότηση στο ρεύμα θα γίνει, μάλιστα, σταδιακά αλλά ο στόχος είναι να πιστωθεί όλο το ποσό μαζί στον κάθε δικαιούχο. Η αποκλιμάκωση στους λογαριασμούς ρεύματος θα ενταθεί ακόμα περισσότερο το επόμενο διάστημα που καταργείται η ρήτρα αναπροσαρμογής και αυξάνονται οι επιδοτήσεις στο σύνολο της μηνιαίας κατανάλωσης του νοικοκυριού, εξήγησε ο κ. Σκρέκας
Ξεκαθάρισε, παράλληλα, ότι αν αυξηθούν κι άλλο οι τιμές στην ενέργεια λόγω της διακοπής για εργασίες συντήρησης στον Nord Stream 1 και εν τέλει «κλείσει» η στρόφιγγα, θα αυξηθεί και η επιδότηση από το κράτος.
Ο κ. Σκρέκας παρέθεσε και τις τέσσερις 4 παρεμβάσεις για να μειωθεί το ρίσκο να «ξεμείνει» η χώρα μας από φυσικό αέριο:
«Με αυτόν τον τρόπο θα καλυφθούμε ακόμα και στην έκτακτη ανάγκη ενώ μειώνουμε συνέχεια την εξάρτηση μας από το ρωσικό αέριο. Η Ελλάδα σύμφωνα με ανάλυση της Κομισιόν αντιμετωπίζει το μικρότερο ρίσκο για την επάρκεια», τόνισε ο κ. Σκρέκας.
Πηγή: dikaiologitika.gr
Παράταση για την υποβολή αιτήσεων στο πρόγραμμα «Ανακυκλώνω-Αλλάζω συσκευή» έως την Παρασκευή 8 Ιουλίου δόθηκε, με απόφαση του υπουργού Περιβάλλοντος και Ενέργειας, Κώστα Σκρέκα.
Σύμφωνα με το ΦΕΚ που εκδόθηκε, «αιτήσεις χρηματοδότησης από δυνητικούς ωφελούμενους μπορούν να υποβάλλονται από την Τρίτη 21/06/2022 και μέχρι την Παρασκευή 08/07/2022. Μετά την παρέλευση της καταληκτικής προθεσμίας και για τρεις (3) ακόμα ημέρες, θα παρέχεται η δυνατότητα υποβολής καταχωρημένων αιτήσεων που βρίσκονται σε εκκρεμότητα. Στο διάστημα αυτό δεν θα δίνεται η δυνατότητα δημιουργίας ή ακύρωσης αίτησης. Ακολουθεί η αξιολόγηση, κατάταξη των αιτήσεων και η ανακοίνωση των προσωρινών αποτελεσμάτων».
Οι αιτήσεις από τους ενδιαφερόμενους για την αντικατάσταση ηλεκτρικών συσκευών υποβάλλονται χωρίς δικαιολογητικά στην ιστοσελίδα https://allazosyskevi.gov.gr/. Ήδη οι δικαιούχοι έχουν τη δυνατότητα να κάνουν αίτηση για επιδότηση αγοράς λιγότερο ενεργοβόρων συσκευών ανεξαρτήτως ΑΦΜ.
Η επιδότηση από το πρόγραμμα «Ανακυκλώνω - Αλλάζω συσκευή» για την αγορά κλιματιστικών, ψυγείων, καταψυκτών κυμαίνεται από 135 έως 710 ευρώ. Κάθε νοικοκυριό που εντάσσεται στο πρόγραμμα επιδότησης έχει τη δυνατότητα να αντικαταστήσει έως και τρεις ηλεκτρικές συσκευές (μέχρι δύο κλιματιστικά, ένα ψυγείο ή έναν καταψύκτη) για την κύρια ή τη δευτερεύουσα κατοικία, ιδιόκτητη ή μισθωμένη.
Δικαιούχοι του προγράμματος είναι όλα τα νοικοκυριά ανεξαρτήτως εισοδήματος.
Το ποσοστό επιδότησης όμως δίνεται βάσει εισοδηματικής κατηγοριοποίησης, ενώ ευάλωτες, πολύτεκνες, μονογονεϊκές, καθώς και στις οικογένειες που υπάρχει μέλος ΑμεΑ, δίνεται επιπλέον μοριοδότηση.
Τα ποσά της επιδότησης:
Όσοι λάβουν την επιδότηση θα πρέπει μέχρι την 16η Σεπτεμβρίου να αγοράσουν τις νέες συσκευές και έως την 30η Σεπτεμβρίου θα πρέπει να γίνει η απόσυρση των παλαιών.
Πηγή: naftemporiki.gr
Χρησιμοποιούμε cookies για την εξατομίκευση περιεχομένου και διαφημίσεων, για την παροχή λειτουργιών κοινωνικών μέσων και για την ανάλυση της επισκεψιμότητάς μας. Επίσης, μοιραζόμαστε πληροφορίες σχετικά με τη χρήση του ιστότοπού μας από τους εταίρους των κοινωνικών μέσων ενημέρωσης, των διαφημίσεων και των αναλυτικών στοιχείων που μπορούν να τα συνδυάσουν με άλλες πληροφορίες που τους έχετε παράσχει ή που έχουν συλλέξει από τη χρήση των υπηρεσιών τους. Συμφωνείτε με τα cookies μας εάν συνεχίσετε να χρησιμοποιείτε τον ιστότοπό μας.